Conjuntament amb l’Ajuntament de Calonge i Sant Antoni, impulsem La Sala, el primer projecte d’habitatge cooperatiu del municipi. Hem recuperat un edifici en desús per oferir accés a l’habitatge digne a la localitat, posant a disposició 14 habitatges que s’han destinat preferentment a joves de menys de 36 anys. L’objectiu és oferir una alternativa assequible i digna d’habitatge perquè els joves del municipi puguin emancipar-se, ja que Calonge presenta actualment un dels preus de lloguer més cars de tota la província fruit de la pressió del model turístic.

El pressupost total de la promoció, sumant els costos d’adquisició i la rehabilitació, ha estat d’1.560.000 €, finançats íntegrament amb un préstec hipotecari de l’Institut Català de Finances de la Generalitat de Catalunya, i amb una aportació subvencional de 300.000 € de l’Ajuntament de Calonge i Sant Antoni.
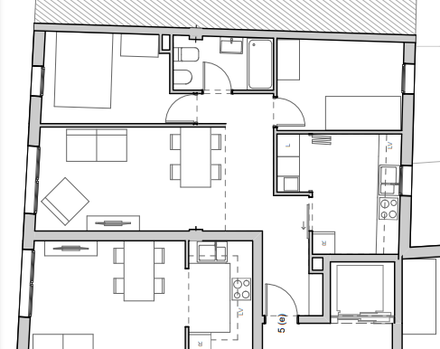
Com són els habitatges?
L’edifici de La Sala se situa al carrer Sala, 24 (Calonge) i està format per una planta soterrània (amb aparcaments), planta baixa i dues plantes pis. L’edifici fa cantonada i compta amb un pati interior: un gran espai col·lectiu complementari per a ús de les sòcies de la cooperativa que hi visquin. Tots els habitatges disposen d’un rebedor, dues habitacions, un bany, un menjador i també cuina amb safareig.



Els habitatges es gestionen sota el model d’habitatge cooperatiu en cessió d’ús, com tots els edificis de la nostra cooperativa. Aquest mecanisme fa possible que els habitatges tinguin un preu assequible: les quotes d’ús dels habitatges són d’entre 280 i 400 €, i les sòcies han de fer una aportació inicial parcialment retornable de màxim 5.500 €.
Per a tots els habitatges, les persones que hi accedeixin han de complir requisits de protecció oficial. A més a més, 4 dels 14 habitatges tenen quotes mensuals i una aportació inicial més reduïda i s’adrecen a unitats de convivència amb menys ingressos, i han estat assignats via per sorteig per l’Ajuntament de Calonge i Sant Antoni entre les persones interessades que s’hi van inscriure a la primera fase d’inscripcions.
Una rehabilitació centrada en l’estalvi d’energia i consums
El 2021 es va iniciar el projecte de reforma, desenvolupat per la cooperativa Celobert. L’objectiu principal era rehabilitar els habitatges i espais comuns per tal que recuperessin les condicions d’habitabilitat, i dotar l’edifici d’instal·lacions i elements comunitaris, encaminats a obtenir una major eficiència energètica i una optimització dels recursos a través de compartir-los.
Així doncs, s’ha instal·lat una caldera de biomassa (pellets) i plaques fotovoltaiques per permetre fer un ús important d’energia renovable autoproduïda, que comporta una baixa despesa en els consums individuals dels habitatges d’electricitat, calefacció i aigua calenta.


A més, amb la finalitat de promoure una mobilitat més ecològica i reduir les nostres emissions, a l’aparcament del propi edifici hi ha un cotxe elèctric compartit, de la cooperativa Som Mobilitat. Les usuàries de l’edifici podran fer ús del cotxe amb una tarifa més econòmica gràcies a un acord entre les dues entitats.
Vols viure a La Sala?
El projecte La Sala actualment és ple i sense vacants. Si en algun moment es dona una baixa al projecte, es comunicarà a totes les sòcies i socis de la cooperativa.
Et recordem que el criteri principal a l’hora de transmetre el dret de cessió d’ús d’un habitatge és l’ordre d’antiguitat a Sostre Cívic, com es recull a l’article 14 dels nostres estatuts. Si encara no ets sòcia o soci, pots fer-ho des d’aquesta pàgina!
I si vols contactar amb nosaltres per qualsevol dubte o comentari, ens pots escriure a info@sostrecivic.cat
Instagram