El projecte Cirerers neix amb l’adjudicació d’un dels solars públics del concurs de 2016 de l’Ajuntament de Barcelona a la nostra cooperativa: el solar de Plaça de les Dones de Nou Barris, al barri de Roquetes.
És el segon projecte d’obra nova de Sostre Cívic a la ciutat, després d’iniciar el setembre de 2019 la construcció de La Balma, a Poblenou. Es tracta d’un edifici de vuit plantes (inclosa la planta baixa), trenta-dos habitatges i espais comunitaris.
Des de l’1 d’abril de 2022, hi vivim un grup de persones agrupades en diverses tipologies de família o unitats de convivència, que tenim diferents procedències o professions. Ens uneixen inquietuds comunes, vivències en ambients col·laboratius i la recerca de formes de vida respectuoses amb les persones i el medi ambient. Com a punt de partida del projecte comunitari, hem redactat un ideari que és el marc a partir del qual es desenvolupen les activitats, complicitats i construccions de relacions, grup i edifici.

Entenem que l’habitatge és un dret bàsic de les persones i, per tant, no ha de ser objecte d’especulació. L’aïllament causat per la mercantilització ha provocat la pèrdua de la vida en comunitat. Aquest projecte neix com a resistència a aquest model.
És un projecte de convivència autogestionat i basat en un funcionament assembleari que fomenta la cooperació i l’ajuda mútua. Volem teixir i recuperar xarxes que ens permetin una vida en comú més lliure de portes endins i de portes enfora.
Com vam fer realitat el projecte?
Entre 2018 i 2019, vam fer el disseny de l’edifici de manera participativa amb l’equip tècnic d’arquitectes Celobert. Després de diverses trobades, tallers i dinàmiques, vam decidir dotar l’edifici de llocs que facilitaran la relació, milloraran la qualitat de vida, i redundaran en la sostenibilitat de l’edifici, guanyant en espais comunitaris i pel barri.
Així doncs, l’edifici està pensat des d’una lògica comunitària i per això disposa d’un carrer-replà a cada planta, on les usuàries podem sortir, jugar o estendre la roba. També compta amb espais interiors comunitaris en planta baixa, oberts al barri i a la plaça.

El projecte comunitari de barri
Volem crear una xarxa de suport mutu que permeti una vida comunitària, autogestionada i assembleària. Actualment ens reunim en assemblea i treballem per enfortir un model alternatiu d’accés a l’habitatge i una vida comunitària arrelada a barri i a les persones.
A la planta baixa de l’edifici s’ubica l’Economat Social, una cooperativa de treball associat dedicada al comerç de productes procedents de l’agroecologia.
El projecte arquitectònic
El solar és un terreny de 428 m2 ubicat al carrer del Pla dels Cirerers, 2-4, Hem volgut disposar d’espais compartits de qualitat, que permetin alliberar de funcions de l’interior dels espais privatius per donar-los a la comunitat, així es deixen d’exhaurir 190m2 d’edificabilitat del solar per l’aposta de fer espais comunitaris. Hem construït uns espais habitables privatius reduïts (50 m2 de mitjana), que queden compensats per 771 m2 d’espai d’ús comunitari.
El material que fem servir a Cirerers és principalment la fusta, i també el morter de calç en les façanes i plaques de guix en els interiors. Tots ells són materials biodegradables i de baixa petjada ecològica, ja que la seva producció, transport i reciclatge comporta molt poques emissions de CO2.
A més, el nostre projecte està fent una passa endavant en innovació constructiva i ja és avui l’edifici de fusta més alt de l’estat, amb vuit plantes. Confirmem així, una vegada més, el compromís del cooperativisme d’habitatge amb la innovació social i mediambiental.

Un exemple d’intercooperació
Gràcies a la seva dimensió, les promocions d’habitatge cooperatiu en cessió d’ús impacten en molts àmbits de l’economia social i solidària i contribueixen a crear un autèntic mercat social català, que pugui resoldre totes les necessitats sense passar per l’economia capitalista.
Amb aquesta idea va néixer, per exemple, La Constructiva, la primera cooperativa sense ànim de lucre orientada a la construcció d’habitatges cooperatius en cessió d’ús, i que actualment s’encarrega de la construcció de l’edifici de Cirerers. Però són moltes altres les entitats que també participen en aquest projecte: Celobert s’encarrega del disseny arquitectònic i la direcció de les obres, Arç de les assegurances de l’edifici i obres, Matriu de l’acompanyament grupal, el Col·lectiu Ronda de l’assessorament legal, Gestió Integral del suport en l’àmbit econòmic i fiscal, i tot ha estat possible gràcies al finançament atorgat per Fiare Banca Ètica.
Vols viure a Cirerers?
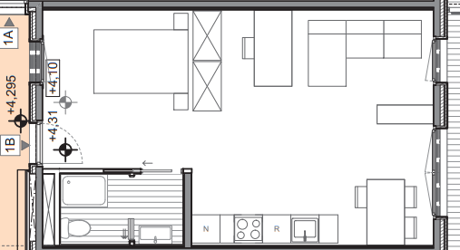
Cirerers actualment té un habitatge vacant: l’1B. Té una superfície útil de 40,25 m2 interiors i consta d’un espai obert amb lavabo complet i cuina integrada. Compta amb un balcó de 7,51 m² i l’accés es fa des del replà obert a l’exterior. Aquest habitatge té una ocupació màxima de 2 persones.

Quines aportacions s’han de fer?
El model de cessió d’ús requereix una aportació inicial i el pagament de quotes mensuals.
L’aportació inicial està formada per la quota d’ingrés, que abona tota persona sòcia a qui se li adjudica un habitatge de la cooperativa, i l’aportació de capital social, que és retornable en cas de baixa.
Habitatges | APORTACIÓ INICIAL | ||
| Capital social (retornable) | Quota d’ingrés | TOTAL | |
| Habitatge 1 B | 20.306,80 € | 1.400 € | 21.706,80 € |
Les quotes mensuals no són retornables, i inclouen la quota d’ús de l’habitatge i altres despeses. Les altres despeses són:
- Impostos: Taxa d’escombraries, IBI i IVA.
- L’aportació al fons pel manteniment de l’edifici.
- L’aportació al fons de solidaritat de la cooperativa.
- Despeses comunitàries: ascensor, manteniments instal·lacions centralitzades, assegurança de l’edifici, subministraments comunitaris…
- Servei d’internet col·lectiu per cable i wifi per a tots els habitatges.
Habitatge | QUOTA MENSUAL | ||||||
| Quota ús | Quota de serveis | IVA | Quota solidaritat | Tributs | Fons de manteniment | TOTAL | |
| 1 B | 352,47 € | 80,84 € | 26,34 € | 9,24 € | 21,02 € | 30 € | 519,91 € |
Quins requisits s’han de complir?
- Ser soci/a de Sostre Cívic.
- Complir els requisits d’Habitatge de Protecció Oficial (HPO) i estar inscrit/a al registre.
- Tenir capacitat econòmica per assumir les quotes que s’han previst: la quota d’ús de l’habitatge no pot suposar més del 40% dels ingressos regulars.
- Signar l’aval mancomunat del finançament del projecte amb Fiare Banca Ètica. La nova incorporació al projecte caldrà que faci el canvi amb la persona que marxa.
- Subscriure l’ideari del projecte i comprometre’s a treballar en la construcció de la comunitat de Cirerers.
- Participar en les formacions bàsiques previstes sobre el model d’habitatge cooperatiu i cooperativisme.
Si t’interessa, omple el formulari que trobaràs a continuació entre els dies 9 i 26 d’abril. Per fer la inscripció efectiva, caldrà haver presentat la documentació sol·licitada en el procés d’incorporació. L’adjudicació de l’habitatge es realitzarà seguint l’antiguitat de sòcia i el llistat es publicarà a partir del 4 de maig.
Pots consultar més informació al dossier descarregable i escrivint-nos a incorporacionsprojectes@sostrecivic.cat



I si vols contactar amb nosaltres per qualsevol dubte o comentari, ens pots escriure a info@cirerers.sostrecivic.cat
Instagram

