Impulsem El Rusc, un projecte d’habitatge cooperatiu en un edifici en desús i fins ara propietat d’una entitat financera que hem recuperat per oferir accés a l’habitatge digne i assequible a la localitat des d’una gestió col·lectiva, de vocació pública i no-especulativa.
Es tracta d’un edifici acabat de reformar, situat a prop del centre de Manresa en un eix comercial important, la Carretera de Cardona, i que consta de 12 habitatges cooperatius d’entre 30 i 35 m2 en règim de cessió d’ús, un model d’accés a l’habitatge alternatiu a la compra i el lloguer.
Aquest projecte compta amb la col·laboració de l’Ajuntament de Manresa, amb qui la cooperativa ha signat un conveni. L’Ajuntament també ha fet una aportació econòmica al projecte, que contribueix a la seva assequibilitat.
Com són els habitatges?
El Rusc se situa a la carretera de Cardona número 54 (Manresa) i està format per una planta baixa, 4 plantes pis i àtic. L’edifici es va iniciar amb la construcció d’una planta baixa el 1880, i posteriorment es van addicionar la resta de plantes, amb diferents canvis de propietaris.
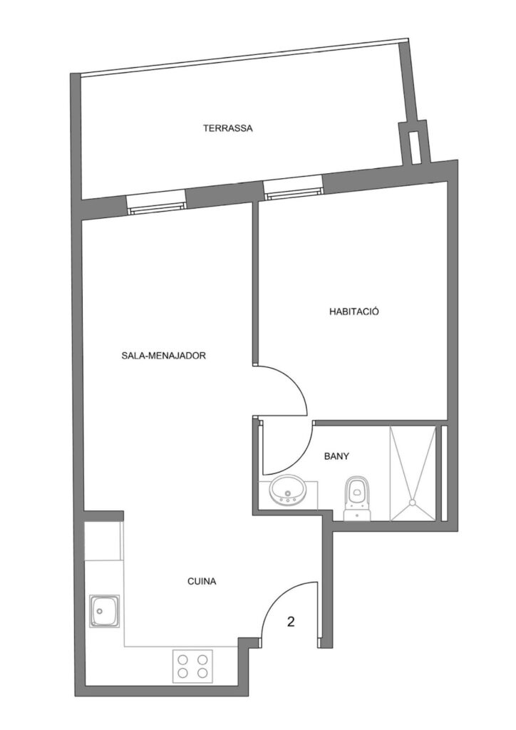
Hi ha habitatges d’una habitació, i d’altres amb un espai únic, sense habitacions. Alguns d’ells compten amb porxo o terrassa. A més, un dels habitatges ha estat destinat com a espai comú complementari, per l’ús de totes les persones del projecte. Pots consultar els plànols, tipologia i totes les característiques de cada habitatge al dossier informatiu del projecte.
Com que els pisos són petits, un dels habitatges de l’edifici ha estat destinat a un ús col·lectiu per a totes les veïnes. Es tracta de 30 m² interiors i una terrassa exterior de quasi 50 m².






Recuperar patrimoni en desús per garantir el dret a l’habitatge
Amb l’objectiu de garantir el dret a l’habitatge digne als col·lectius més vulnerables que el mercat immobiliari deixa fora, els habitatges es destinen preferentment a joves menors de 30 anys i persones de més de 65 anys. També 1 dels habitatges s’adreça a la Mesa d’Emergència i s’assigna per part de l’Agència de l’Habitatge de Catalunya.

Com és el grup d’El Rusc?
El Rusc som un grup divers: és intergeneracional i som d’orígens diferents, parlem diferents idiomes. Les experiències que ens han portat fins aquí som molt diferents i ens uneix que tots tenim necessitat d’habitatge, per això som aquí. En la convivència, no volem forçar res, cadascú té la seva vida i, a la vegada, tenim ganes de compartir i que cadascú proposi el que li agrada.
Quan pensem en el futur tenim clar que volem ser una comunitat respectuosa, on hi hagi lloc per a tothom. A El Rusc tots estem aprenent dels altres i la base és el respecte. Volem donar-nos suport en la quotidianitat i compartir coses que ens agraden. Conèixer-nos ens fa sentir tranquils, i per això volem fer coses que ens apropin més. Som diferents i volem que això ens aporti!”
També comptem amb uns acords convivència i un protocol d’acollida i sortida de sòcies. El projecte s’organitza per comissions i ens reunim un cop al mes.

Vols viure a El Rusc?
Actualment, hi ha dos habitatges disponibles al projecte (1o 4a i 2n 2a), un a la primera planta i l’altre a la segona. Els dos consten d’una cuina americana i menjador, una habitació i un lavabo complert; i un d’ells consta també de terrassa. Totes les estances tenen ventilació exterior, excepte el lavabo que té extracció natural. La cuina està equipada amb forn i cuina completa. No disposen d’electrodomèstics. Els habitatges tenen calefacció i subministrament d’aigua, gas, electricitat i internet.


Quines aportacions s’han de fer?
Amb el model d’habitatge cooperatiu en cessió d’ús es fan dos tipus d’ingressos: l’aportació inicial i les quotes mensuals:
- L’aportació inicial està formada per la quota d’ingrés, que abona tota persona sòcia a qui se li adjudica un habitatge de la cooperativa, i l’aportació de capital social, que és retornable en cas de baixa. En el moment de lʼadjudicació de lʼhabitatge sʼabonarà la totalitat de lʼaportació de capital.
| Habitatge | Aportació Inicial | ||
| Capital social(retornable) | Quota d’ingrés (No retornable) | TOTAL | |
| 1r 4a | 1.700 € | 500 € | 2200 € |
| 2n 2a | 1.800 € | 500 € | 2.300 € |
- Les quotes mensuals, que no són retornables, i inclouen la quota d’ús de l’habitatge i altres despeses. Les quotes mensuals es pagaran a partir de la signatura del contracte i es cobraran entre els dies 1 i 7 de cada mes mitjançant domiciliació bancària.
| Habitatge | QUOTA MENSUAL | |||||
| Quota ús | Quota serveis | Tributs i altres | Fons manteniment | Quota solidaritat | TOTAL | |
| 1r 4a | 214,33 € | 76,11 € | 67,68 € | 15 € | 6,43 € | 379,55 €* |
| 2n 2a | 246,70 € | 76,11 € | 67,68 € | 15 € | 7,40 € | 412,89 € * |
* No estan inclosos la quota de sòcia de Sostre Cívic (quota trimestral de 36 euros) ni els consums individuals d’aigua, llum i gas de cada habitatge (70 € + IVA regularitzables cada any).
Quins requisits s’han de complir?
- Ser persona sòcia de Sostre Cívic.
- Cal complir els requisits d’Habitatge de Protecció Oficial (HPO) i estar inscrit/a al registre.
- S’ha de disposar d’uns ingressos regulars que assegurin que la quota mensual de l’habitatge no suposa més del 40% del total mensual dels ingressos.
- Participar en les formacions bàsiques previstes sobre el model d’habitatge cooperatiu i cooperativisme.
Pots consultar el dossier informatiu per a més detalls sobre el projecte i el procés d’incorporacions a l’habitatge. I si vols contactar amb nosaltres per qualsevol dubte o comentari, ens pots escriure a incorporacionsprojectes@sostrecivic.cat.
Instagram