
La Bastida – Pati del Gall és un projecte impulsat per un petit grup de sòcies de Sostre Cívic veïnes de Vilafranca amb el suport de La Bastida, entitat referent al municipi que des de 2021 desenvolupa accions fent incidència política i donant a conèixer el model d’habitatge cooperatiu en cessió d’ús.
El projecte s’inicia gràcies a la col·laboració de l’Ajuntament de Vilafranca del Penedès, que amb l’objectiu d’incrementar el parc d’habitatges en règim de protecció oficial del municipi i d’assegurar un habitatge digne i adequat pels ciutadans, cedeix a Sostre Cívic un solar municipal amb un dret de superfície de 75 anys.
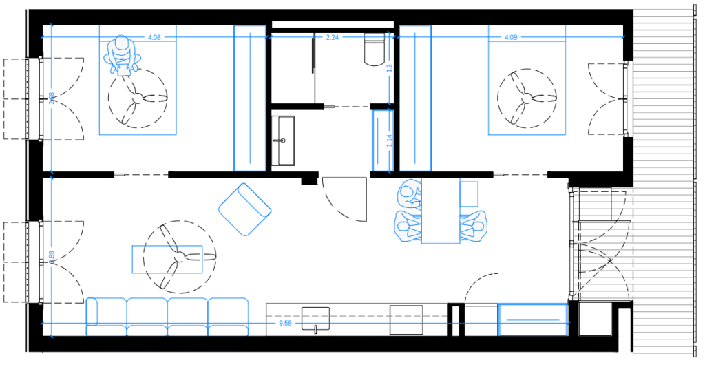
Com serà La Bastida-Pati del Gall?
L’edifici s’ubicarà al carrer del Nord, número 10, i es preveu que estigui format per planta baixa, tres plantes i coberta, amb habitatges d’1, 2, 3 o 4 habitacions. Les obres començaran en les properes setmanes i s’allargaran fins a finals de 2026. Actualment, el grup impulsor compta amb 9 unitats familiars, però s’ha obert una campanya per sumar-ne entre 10 i 12 més fins a completar les 24 unitats que formaran part del projecte.

El grup de La Bastida-Pati del Gall, fins a l’entrada a viure, liderarà tot el procés de promoció de l’habitatge, juntament amb l’equip tècnic de Sostre Cívic i els professionals externs amb els quals es treballa. Això significa participar del procés de disseny arquitectònic, del seguiment del pla de viabilitat econòmica, o de les qüestions vinculades al projecte comunitari i convivencial, per posar alguns exemples.


L’organització col·lectiva es fa des d’una assemblea del projecte, que es reuneix periòdicament per prendre les decisions cabdals i d’una organització per comissions temàtiques, que porten el seguiment específic de cada tema.
Un dels elements que caracteritza l’habitatge cooperatiu en cessió d’ús és el de disposar d’espais comuns cabdals per a la vida comunitària. A La Bastida-Pati del Gall se n’estan preveient diversos, des d’una coberta amb un ampli espai exterior, una bugaderia col·lectiva i una sala polivalent amb cuina comunitària, passant per habitacions satèl·lit o de convidades, fins a un pàrquing de cotxes i bicicletes amb places compartides en planta baixa.
Pots descubrir com avancen des de dins les obres del projecte en el següent vídeo:
Quins requisits cal complir per viure a La Bastida-Pati del Gall?

- Cal ser sòcia de Sostre Cívic. En cas de no ser-ho, cal associar-s’hi aquí per participar.
- Cal estar inscrit al registre de sol·licitants d’habitatges de protecció oficial (complint tots els requisits que marca la normativa autonòmica). Aquest requisit es tindrà en compte en el moment de l’adjudicació de l’habitatge.
- Cal assumir els imports del projecte. Cal tenir capacitat econòmica per assumir les quotes mensuals resultants: s’ha de disposar d’uns ingressos regulars superiors al 40% de la quota mensual de l’habitatge. Aquest requisit es tindrà en compte en el moment de l’adjudicació de l’habitatge.
- Cal participar en les formacions bàsiques previstes sobre el model d’habitatge cooperatiu i cooperativisme. Les persones que s’incorporin al projecte s’han de comprometre a participar en les sessions formatives que es duran a terme.
| ✓ Tindran prioritat d’accés les persones empadronades des de fa 3 anys a Vilafranca del Penedès (o amb un històric d’empadronament de com a mínim 10 anys). S’admetran també persones d’altres municipis, donant preferència en segona opció a les empadronades a la Vegueria Penedès. ✓ A més, es reservaran 6 dels 24 habitatges a joves de fins a 35 anys. |
L’habitatge vacant
Actualment, queda un únic habitatge vacant reservat per a joves nascuts l’any 1992 o posteriorment:

| HABITATGE | Tipologia | Superfície útil interior | Superfície amb espais comuns | Nombre habitacions |
| 1-2 | Habitatge tipus M | 54,78 m² | 64,49 m² | 2 |
Consulta el dossier informatiu del projecte per revisar les condicions econòmiques i les aportacions previstes per l’habitatge disponible.
Vols formar part de La Bastida-Pati del Gall?
El procés d’incorporació al grup es farà periòdicament. El formulari d’inscripció al web del projecte es podrà omplir permanentment i es realitzaran tres talls en tres moments de l’any:
- 31 de gener
- 30 de juny
- 30 de setembre
Les persones inscrites al formulari, sempre que no ho hagin fet anteriorment, realitzaran una trobada d’acollida amb representants del grup impulsor per tal d’aclarir dubtes i confirmar el seu interès en el projecte.
S’agafaran totes les sol·licituds rebudes fins a la data del tall, endreçades per número de soci/sòcia a Sostre Cívic i segons els criteris de preferència que apareixen al dossier informatiu i es contactarà amb les persones inscrites.
Si t’interessa entrar a viure en aquest projecte, inscriu-t’hi omplint el formulari que trobaràs al final d’aquesta pàgina. Per a més informació, pots consultar el dossier informatiu del projecte o ens pots escriure a info@patidelgall.sostrecivic.cat o a gestioprojectes@sostrecivic.cat

Instagram